Mehrfamilien-Haus

Ansichten
Dachgeschoss
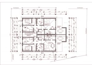
Erdgeschoss
Untergeschoss
Schnitt
Lageplan – Abstandsflächen